欢迎光临济南济鲁特钢有限公司官方网站!

科技创新

速看!钢的淬透性能测定

01

概述

钢的淬透性一般是指钢材奥氏体化以后能够接受淬火能力的大小,或者说钢的淬透性是表征钢材淬火时获得马氏体能力的特性。通常是指淬透层深度。

淬透层深度应以100%的马氏体或含有少量残余奥氏体的马氏体层深度来表示。

为了表示和测量方便,一般用半马氏体区来表示淬透层深度。因为半马氏体区的硬度是很容易测量的。

淬透性是提供钢的性能及设计机器零件的一项重要数据,它可以指导我们如何正确地选用钢材,既经济又能满足性能要求,以及正确选择热处理工艺。

02

影响钢的淬透性的因素

·化学成分的影响

·奥氏体晶粒大小的影响

·钢的原始组织中碳化物的影响

·外界条件的影响

图片

1. 化学成分的影响

对于过共析钢当加热温度低于Acm 时,在含碳量低于1%时,随着含碳量的增加临界冷却速度下降,淬透性提高:当含碳量超过1%时则相反:当加热温度高于Ac或Acm时,则随着含碳量的增加,临界冷却速度单调下降。一般来说,凡是能使过冷奥氏体稳定化的合金元素均可增加钢的淬透性,如Cr、Mo、Si、Ni等。少量的T、Zr、V溶入奥氏体后也可以增加钢的淬透性,但超过一定量后,将使钢的透性显著变坏。钢中加入少量的B对淬透性有利,当加入量过多则使钢变脆。

2.奥氏体品粒大小的影响

一般情况下,奥氏体品粒愈粗,则使C曲线愈右移,因而降低了冷却速度,从而使淬透性提高,否则相反。但奥氏体品粒愈粗,则使钢的其他性能降低。

3.钢的原始组织中碳化物的影响

奥氏体中溶解的碳化物愈多,钢的淬透性愈好。众所周知,碳化物颗粒愈大,则愈不容易溶解,所以为了提高钢的淬透性能,要求钢的原始组织中的碳化物分布愈均匀、颗粒愈细愈好。

4.外界条件的影响

冷却介质的冷却能力愈强,钢的淬透性愈好,所以有时将冷却介质搅拌用,目的也在于此。零件截面积愈大,愈不容易淬透,即淬透性能愈低,表面硬度也愈低因此对淬透性能低的钢种不宜制造机械性能要求高的大截面的零件。

03

钢的淬透性的测定方法

·断口表示法

·临界直径法

·尾端淬火法(简称端淬法)

·计算法

1.断口表示法

选一组不同钢种但直径相同的试样(长度是直径的四倍)加热到奥氏体化温度后,在相同的冷却条件下淬火,将试样沿横截面断开磨平,然后在横断面上沿直径测其硬度分布,作出硬度分布曲线,其形状如“U”形,这样就可以得知各种钢的淬硬层深度。这种方法直观简单,如果选用的直径与工件尺寸相当,则测出的泣硬性也还是比较准确的。但这种方法测出的数值与试样尺寸、淬火介质的冷却能力有关,因此准确性不高,故很少用。

2.临界直径法

将某种钢制成直径不同的一组圆柱试样,经过同样的温度加热保温以后,用同样的冷却速度淬火,然后沿横截面断开,磨制金相试样,测量硬度并进行金相分析,这样在一组试样中总可以找到一个中心为50%非马氏体组织的一个试样,这个试样的直径就是临界直径。这种测量的优点是准确可靠,并可求出在任何冷却条件下的临界直径。缺点是需要试样的数量较多,而且切断淬火试样是比较困难的。

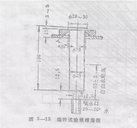
3.尾端淬火法

端淬法的要点是采用规定的试样,在端淬机上进行未端淬火,在这种冷却条件下,试样未端的冷却速度最大,距未端愈远,冷却速度愈小经淬火后,沿试样纵向磨出2-3mm的平台:从距未端1.5mm处开始测其表面硬度,直测到表面硬度不变为止,并绘出各种钢的淬透性曲线。

第一点的硬度为全马氏体的硬度(100%马氏体),即为此种钢的淬硬性。曲线拐点的硬度为半马氏体的硬度,(50%马氏体),从未端至半马氏体的深度即为此种钢的淬透深度,也即淬透性。

图片

04

试验目的

·了解几种测定淬透性能方法

·掌握端淬法测量手段

·了解影响淬透性能因素

05

试验内容

1.了解用断口法、临界直径法和端淬法测定钢的淬透性能的原理和方法。

2.用端淬法测定45、40Cr、40CrNi三种材料淬透性曲线。

1)加工端淬试样,涂保护剂防止氧化脱碳。

2)将试样放入830℃电炉中加热,到温后保温20min。

3)将试样取出,迅速放入端淬设备上,打开水阀冷却。

4)试样冷却后在测表面磨出3mm的平面,测量硬度,直到硬度无变化为止。

5)绘出三种材料的淬透性曲线。

06

注意事项

保证喷水柱自由高度为65mm,喷水口距试样端部为12.5mm。

取样到喷水冷却时间间隔不超过5秒冷却时防止水珠溅入试样表面。


上一条:常用热处理工艺 下一条:没有了!

新闻中心

联系我们

公 司:济南济鲁特钢有限公司

联系人:李经理

电话:13573763066

手机:13515342228

E-mail:542392096@qq.com

地 址:章丘市相公庄镇牛推二村村东水库路北

用手机扫描二维码关闭
二维码
-->